南浦和センチュリーマンション 8階
さいたま市立岸町小学校が徒歩11分のところにあり、お子様の通学も便利です。住んでいて心地の良い中古マンションで魅力的です。内装リフォーム済みなので、新しくなった住まいで生活を始めることができます。さいたま市南区で新生活を送るなら、ah-kawaguchim@aeonmall.com、または048-264-1221から遠慮なくお問い合わせ下さい。
-
ローンシミュレーションこの物件を購入した場合の、月々の支払い価格の一例です。借り入れを保証するものではございません。
- 返済期間
-
- 金利
-
- ボーナス時の増額(1回分)
-
- 借入金額:
-
- 頭金:
-

- 毎月の返済額:
(※元利均等方式 金利5.00%まで ※返済年数5~50年まで入力できます)
(※ボーナスは年2回で計算しています。1000万円まで入力できます)
(※物件購入時、その他諸費用が発生する場合がございます)
情報の見方担当者のコメント イオンハウジング川口前川店

- さいたま市立岸町小学校が通学範囲内、学校まで徒歩11分。大人数でも不自由なく楽しめる、12帖以上のLDKです。食器洗乾燥機は食後の家事の時間短縮に役立ちます。相場としても妥当な、3,190万円の物件となっています。埼京線武蔵浦和周辺をご利用するなら、048-264-1221から当社にお電話をお待ちしております。メールでのお問い合わせなら、ah-kawaguchim@aeonmall.comまでご連絡ください。
ポイント・特徴
物件概要
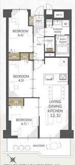
【中古マンション】 物件番号:96202288 情報更新日:2025年11月11日 次回更新予定日:2025年11月25日所在地 埼玉県さいたま市南区白幡3丁目9-12 交通 間取り/詳細 3LDK
LDK 12.3帖 1室/洋室 4.7帖 1室/洋室 4.4帖 1室/洋室 4.3帖 1室専有面積/バルコニー面積 60.50㎡/6.42㎡ ルーフバルコニー面積/テラス面積/専用庭面積 -/-/- 価格 2,990万円 管理費 9,600円 修繕積立金 13,700円 修繕積立基金 - 権利金 - 駐車場/月額料金 -/ 駐車場:月額12000円 土地の敷金/保証金 -/- 借地料/借地期間 -/- 土地権利 所有権 国土法届出要否 不要 用途地域 準工業 地勢 - 種別/構造 中古マンション/鉄筋コンクリート 向き 南西 築年月(築年数) 1974年 5月 (築51年) 所在階/階建 8階/11階建 地下1階 棟総戸数/販売戸数 152戸/- 管理組合有無 - 管理形態 管理会社に全部委託 管理員の勤務形態 日勤 管理会社 株式会社合人社計画研究所 取引態様 仲介 現況 空家 引渡し 即時 建築確認番号 - 物件番号 96202288 取引条件の有効期限 2025年11月25日 リフォーム 2025年7月
キッチン 浴室 トイレ 壁 床 ■システムキッチン新規■ユニットバス新規■洗面化粧台新規■トイレ新規■建具新規■配管更新■クロス全室貼替■床材貼替■食洗機新規取付■ハウスクリーニング
設備条件 - ペット相談
- ペット飼育可
- リフォーム済
- エレベーター
- 食器洗い乾燥機
備考 ファミリー向けのポイント、さいたま市立岸町小学校が徒歩11分のところにあります。内装リフォーム済みなので、新しくなった住まいで生活を始めることができます。さいたま市南区エリアで暮らすなら、埼京線武蔵浦和周辺が住みやすいですよ。048-264-1221またはah-kawaguchim@aeonmall.comまでいつでもご連絡ください。 条件(その他) ペット飼育可(細則有) 取扱会社 - イオンハウジング 川口前川店(運営会社:イオンモール株式会社)
- 埼玉県川口市前川1丁目1-11 イオンモール川口前川 1階
- TEL:048-264-1221
- 国土交通大臣 (4) 第7682号
プライバシーマーク
環境ISO 14001 - (一社)全国住宅産業協会会員
(公社)首都圏不動産公正取引協議会加盟
※地図上に表示される物件の位置は付近住所に所在することを表すものであり、実際の物件所在地とは異なる場合がございます。
物件お問い合わせ
- 掲載物件数
-
件
- 公開物件数
-
件
- 本日の更新件数
-
件
- 会員物件数
-
件
この物件を見た方へのお勧め物件
- ゼファー武蔵浦和グランリブス
- 2,980万円 3LDK/73.04㎡
- 埼玉県さいたま市南区内谷3丁目
- 武蔵野線「西浦和」駅 徒歩25分
- 浦和白幡東高層住宅1号棟
- 2,799万円 3LDK/70.79㎡
- 埼玉県さいたま市南区白幡3丁目
- 埼京線「武蔵浦和」駅 徒歩12分
- 武蔵浦和西パーク・ホームズ
- 2,690万円 3LDK/62.46㎡
- 埼玉県さいたま市南区曲本3丁目
- 埼京線「武蔵浦和」駅 徒歩19分
- 白幡第2コーポサンキョー
- 3,290万円 2LDK/57.78㎡
- 埼玉県さいたま市南区白幡3丁目
- 埼京線「武蔵浦和」駅 徒歩10分
- ライオンズマンション浦和県庁前
- 3,380万円 1LDK/50.30㎡
- 埼玉県さいたま市南区別所3丁目
- 埼京線「中浦和」駅 徒歩11分





























