朝日プラザ川口前川 3階
12帖以上のLDKで数人でも集まれる部屋があります。すぐに入居できるので、お急ぎの方も安心してお問い合わせください。必須条件として挙げる方が多い、エレベーター付きの物件です。川口市エリアでお住まいをお求めなら、京浜東北線蕨近くはいかがでしょうか。お住まい探しの事ならイオンハウジング 川口前川店(運営会社:イオンモール)までお尋ねください。
-
ローンシミュレーションこの物件を購入した場合の、月々の支払い価格の一例です。借り入れを保証するものではございません。
- 返済期間
-
- 金利
-
- ボーナス時の増額(1回分)
-
- 借入金額:
-
- 頭金:
-

- 毎月の返済額:
(※元利均等方式 金利5.00%まで ※返済年数5~50年まで入力できます)
(※ボーナスは年2回で計算しています。1000万円まで入力できます)
(※物件購入時、その他諸費用が発生する場合がございます)
情報の見方担当者のコメント イオンハウジング川口前川店

- 川口市立前川東小学校まで徒歩4分。子どもを安心して学校に通わせたいファミリーにおすすめです。余裕のある12帖以上のLDKで、リラックスしてお過ごしいただけます。内装リフォーム済みなので、新しくなった住まいで生活を始めることができます。待つのが嫌いな方にはこちらの即引渡し可の物件をお勧めします。川口市にある、京浜東北線蕨周辺でお住まいを検討される方は、当社へお任せ下さい。連絡先は、048-264-1221及びah-kawaguchim@aeonmall.comです。
ポイント・特徴
物件概要
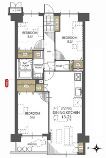
【中古マンション】 物件番号:101629535 情報更新日:2026年03月03日 次回更新予定日:2026年03月17日所在地 埼玉県川口市前川3丁目28-10 交通 間取り/詳細 3LDK
LDK 13.2帖 1室/洋室 5.6帖 1室/洋室 5.0帖 1室/洋室 3.6帖 1室専有面積/バルコニー面積 59.36㎡/3.65㎡ ルーフバルコニー面積/テラス面積/専用庭面積 -/-/- 価格 1,890万円 管理費 9,990円 修繕積立金 15,360円 修繕積立基金 - 権利金 - 駐車場/月額料金 -/10,000円 土地の敷金/保証金 -/- 借地料/借地期間 -/- 土地権利 所有権 国土法届出要否 不要 用途地域 第一種住居 地勢 - 種別/構造 中古マンション/鉄筋コンクリート 向き 西 築年月(築年数) 1987年 7月 (築38年) 所在階/階建 3階/6階建 棟総戸数/販売戸数 55戸/1戸 管理組合有無 - 管理形態 管理会社に全部委託 管理員の勤務形態 日勤 管理会社 日本ハウズイング株式会社 取引態様 仲介 現況 空家 引渡し 即時 建築確認番号 - 物件番号 101629535 取引条件の有効期限 2026年03月17日 リフォーム 2026年2月
キッチン 浴室 トイレ 壁 床 ■洗面化粧台新規交換■建具新規交換■ハウスクリーニング
設備条件 - リフォーム済
- エレベーター
備考 徒歩4分の場所に川口市立前川東小学校があります。中古マンションですが、綺麗に整備されているので住み心地良好です。12帖以上のLDKとなっており、家族団らんの場としても適した広さです。イオンハウジング 川口前川店(運営会社:イオンモール)がオススメする不動産のご購入を検討された方は、お気軽にお問い合わせ下さい。快適に新生活が始められるよう、しっかりとサポートいたします。 取扱会社 - イオンハウジング 川口前川店(運営会社:イオンモール株式会社)
- 埼玉県川口市前川1丁目1-11 イオンモール川口前川 1階
- TEL:048-264-1221
- 国土交通大臣 (4) 第7682号
プライバシーマーク
環境ISO 14001 - (一社)全国住宅産業協会会員
(公社)首都圏不動産公正取引協議会加盟
※地図上に表示される物件の位置は付近住所に所在することを表すものであり、実際の物件所在地とは異なる場合がございます。
物件お問い合わせ
- 掲載物件数
-
件
- 公開物件数
-
件
- 本日の更新件数
-
件
- 会員物件数
-
件
この物件を見た方へのお勧め物件
- サンライフ東川口
- 1,990万円 3LDK/64.66㎡
- 埼玉県川口市大字東内野
- 武蔵野線「東川口」駅
- 第五コーポサンキョー
- 1,790万円 2LDK/52.67㎡
- 埼玉県川口市朝日2丁目
- 埼玉高速鉄道「南鳩ヶ谷」駅 徒歩10分
- 川口第一ローヤルコーポ
- 2,070万円 2LDK/60.03㎡
- 埼玉県川口市栄町1丁目
- 埼玉高速鉄道「川口元郷」駅 徒歩5分
- ライオンズマンション川口芝公園第二
- 1,680万円 3DK/55.75㎡
- 埼玉県川口市芝下1丁目
- 京浜東北線「蕨」駅 徒歩20分
- 青木橋スカイハイツ
- 1,598万円 1LDK/45.13㎡
- 埼玉県川口市青木1丁目
- 埼玉高速鉄道「川口元郷」駅 徒歩9分



























