ウィズ戸田公園弐番館 9階
内装にリフォームを行い、作業完了後にお渡しいたします。広々とした12帖以上のLDKのおかげで、日々の生活にゆとりが出ます。住まい探しで大切なことは、信頼できる不動産会社を選ぶことです。弊社では、お客様としっかり向き合い、住まい探しをサポート致しますので、安心してお任せください。
ローンシミュレーションこの物件を購入した場合の、月々の支払い価格の一例です。借り入れを保証するものではございません。
- 返済期間
-
- 金利
-
- ボーナス時の増額(1回分)
-
- 借入金額:
-
- 頭金:
-

- 毎月の返済額:
(※元利均等方式 金利5.00%まで ※返済年数5~50年まで入力できます)
(※ボーナスは年2回で計算しています。1000万円まで入力できます)
(※物件購入時、その他諸費用が発生する場合がございます)
担当者のコメント イオンハウジング川口前川店

- 収納不足の心配要らずな、ウォークインクロゼット2つの物件です。居住者専用シャトルバスがあります。。内装リフォームを済ませた後にお渡しが可能です。戸田市エリアでお引越し先をお探しなら、当社までご連絡下さい。見学の予約はah-kawaguchim@aeonmall.com、048-264-1221からお申し付け下さい。
ポイント・特徴
物件概要
【中古マンション】 物件番号:98323038 情報更新日:2025年11月11日 次回更新予定日:2025年11月25日| 所在地 | 埼玉県戸田市笹目南町10-10 | ||
|---|---|---|---|
| 交通 | |||
| 間取り/詳細 |
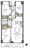
3LDK LDK 13.4帖 1室/洋室 6.3帖 1室/洋室 6.1帖 1室/洋室 5.0帖 1室 |
||
| 専有面積/バルコニー面積 | 70.12㎡/9.90㎡ | ルーフバルコニー面積/テラス面積/専用庭面積 | -/-/- |
| 価格 | 3,090万円 | ||
| 管理費 | 12,400円 | ||
| 修繕積立金 | 20,640円 | 修繕積立基金 | - |
| 権利金 | - | 駐車場/月額料金 | -/- |
| 土地の敷金/保証金 | -/- | 借地料/借地期間 | -/- |
| 土地権利 | 所有権 | 国土法届出要否 | 不要 |
| 用途地域 | 準工業 | 地勢 | - |
| 種別/構造 | 中古マンション/鉄筋コンクリート | 向き | 南西 |
| 築年月(築年数) | 2004年 10月 (築21年) | ||
| 所在階/階建 | 9階/12階建 | 棟総戸数/販売戸数 | 55戸/1戸 |
| 管理組合有無 | 無 | 管理形態 | 管理会社に全部委託 |
| 管理員の勤務形態 | 日勤 | 管理会社 | 株式会社フージャースリビングサービス |
| 取引態様 | 仲介 | 現況 | 空家 |
| 引渡し | 即時 | 建築確認番号 | - |
| 物件番号 | 98323038 | 取引条件の有効期限 | 2025年11月25日 |
| リフォーム |
2025年12月 キッチン 浴室 トイレ 壁 床 ■洗面化粧台交換■建具新規交換■配管更新■ハウスクリーニング 他 |
||
| 設備条件 |
|
||
| 備考 | 洋服のみならず様々な物を収めるウォークインクロゼットを2つ用意しております。住み心地がしっかりと考えられた中古マンションです。居住者専用シャトルバスがあります。こちらは南西向きの物件です。これから満足出来るお住まいを検索するなら、戸田市の埼京線戸田周辺に注目です。お客様のご要望を、ah-kawaguchim@aeonmall.comよりお聞かせ下さい。 | ||
| 条件(その他) | ケーブルテレビ利用料月:110円 町会費月:200円 ペット飼育/可(細則有) | ||
| 取扱会社 |
|
||
※地図上に表示される物件の位置は付近住所に所在することを表すものであり、実際の物件所在地とは異なる場合がございます。
























