川口市本前川1丁目 1号棟
価格の面でも、3,880万円と、負担の少ない条件の物件です。広々とした15帖以上のLDKで家族とゆったり過ごせます。南向きの物件は、洗濯にも便利です。浴室に窓があれば空気の入れ替えができて湿気も大丈夫です。川口市での不動産探しはイオンハウジング 川口前川店(運営会社:イオンモール)にお任せください。当社でなら、きっと素敵な不動産が見つかることでしょう。
ローンシミュレーションこの物件を購入した場合の、月々の支払い価格の一例です。借り入れを保証するものではございません。
- 返済期間
-
- 金利
-
- ボーナス時の増額(1回分)
-
- 借入金額:
-
- 頭金:
-

- 毎月の返済額:
(※元利均等方式 金利5.00%まで ※返済年数5~50年まで入力できます)
(※ボーナスは年2回で計算しています。1000万円まで入力できます)
(※物件購入時、その他諸費用が発生する場合がございます)
担当者のコメント イオンハウジング川口前川店

- 食品庫でいつでも食料を保管し、何かの時に備える事も出来ます。きれい好きな方など幅広い層の方にお勧めの新築戸建て物件で清々しい新生活を。トイレが2ヶ所にあるので複数人でも快適に暮らせます。南向きの物件なので気持ちいい光が室内に入ります。新たな生活の第一歩をイオンハウジング 川口前川店(運営会社:イオンモール)がサポート致します。川口市での不動産探しなら、ぜひお任せください。
ポイント・特徴
物件概要
【新築一戸建】 物件番号:98070368 情報更新日:2025年12月11日 次回更新予定日:2025年12月25日| 所在地 | 埼玉県川口市本前川1丁目 | ||
|---|---|---|---|
| 交通 | |||
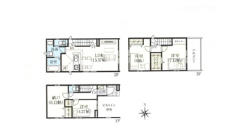
| 間取り/詳細 |
3LDK+1S(納戸)/ 洋室 4.3帖 1室/S 6.1帖 1室/LDK 15.3帖 1室/洋室 7.1帖 1室/洋室 6.0帖 1室 |
建物面積(坪数) | 104.33㎡(31.55坪) |
| 価格 | 3,590万円 | ||
| 駐車場/月額料金 | 有(1台)/0円 | ||
| 土地の敷金/保証金 | -/- | 借地料/借地期間 | -/- |
| 土地権利 | 所有権 | 土地面積(坪数) | 64.73㎡(19.58坪) |
| 傾斜地部分面積 | - | 路地状敷地 | - |
| 私道負担面積/セットバック | -/無 | 高圧線下面積 | - |
| 地目/地勢 | 宅地/- | 接道状況 | 一方(東 公道 4.0m 間口 5.2m) |
| 建ぺい率/容積率 | 60%/160% | 用途地域 | 第一種住居 |
| 都市計画 | - | 種別/構造 | 新築一戸建/木造 |
| 階建 | 3階建 | 築年月(築年数) | 2025年 11月 (予定) |
| 総区画数/販売区画数 | 5区画/- | 向き | - |
| 現況 | 未完成 | その他の法令上の制限 | 景観法 |
| 取引態様/引渡時期 | 仲介/相談 | 建築確認番号 | 第HPA-25-02970-1号 |
| 物件番号 | 98070368 | 取引条件の有効期限 | 2025年12月25日 |
| 設備条件 |
|
||
| 備考 | 対面式キッチンとなっているので室内を見渡すことができます。新しい土地の新築戸建て物件で、心機一転、新生活を始めませんか。浴室に窓がついていれば熱がこもらないのでカビになりません。相場としても妥当な、3,880万円の物件となっています。住んだことの無い場所で不動産をお探しなら、当社にお任せください。地元を知り尽くしたスタッフがあなたのサポートを致します。ぜひご検討ください。 | ||
| 取扱会社 |
|
||
※地図上に表示される物件の位置は付近住所に所在することを表すものであり、実際の物件所在地とは異なる場合がございます。




















