川口市本前川3丁目 新築戸建
対面式のオープンキッチンなのでご飯の支度もラクラクです。クローゼット付きの物件です。内外装共に綺麗な新築戸建ての物件はいかがでしょうか。広いLDKで、間取りに区切りが無く日光が入りやすいのが魅力です。お客様の立場に立ち、京浜東北線蕨近くの戸建てをお探しします。ご連絡は048-264-1221、ah-kawaguchim@aeonmall.comをご利用下さい。
ローンシミュレーションこの物件を購入した場合の、月々の支払い価格の一例です。借り入れを保証するものではございません。
- 返済期間
-
- 金利
-
- ボーナス時の増額(1回分)
-
- 借入金額:
-
- 頭金:
-

- 毎月の返済額:
(※元利均等方式 金利5.00%まで ※返済年数5~50年まで入力できます)
(※ボーナスは年2回で計算しています。1000万円まで入力できます)
(※物件購入時、その他諸費用が発生する場合がございます)
担当者のコメント イオンハウジング川口前川店

- きれい好きな方など幅広い層の方にお勧めの新築戸建て物件で清々しい新生活を。浴室に窓があるので湿気がこもらずいつでもいい空気に入れ替えることができます。こちらは南向き物件です。こちらの物件はいかがでしょうか。価格は2,790万円です。川口市でなら、お客様のご希望の不動産情報が見つかります。まずは048-264-1221からイオンハウジング 川口前川店(運営会社:イオンモール)までご連絡ください。
ポイント・特徴
物件概要
【新築一戸建】 物件番号:98108324 情報更新日:2026年03月07日 次回更新予定日:2026年03月17日| 所在地 | 埼玉県川口市本前川3丁目24-19 | ||
|---|---|---|---|
| 交通 | |||
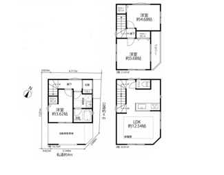
| 間取り/詳細 |
3LDK/ 洋室 3.6帖 1室/LDK 12.5帖 1室/洋室 5.6帖 1室/洋室 4.6帖 1室 |
建物面積(坪数) | 71.68㎡(21.68坪) |
| 価格 | 2,590万円 | ||
| 駐車場/月額料金 | 有(1台)/0円 | ||
| 土地の敷金/保証金 | -/- | 借地料/借地期間 | -/- |
| 土地権利 | 所有権 | 土地面積(坪数) | 37.80㎡(11.43坪) |
| 傾斜地部分面積 | - | 路地状敷地 | - |
| 私道負担面積/セットバック |
63.10㎡/無 私道負担割合 : 1/5 |
高圧線下面積 | - |
| 地目/地勢 | 宅地/- | 接道状況 | 角地(南 私道 4.0m)(東 公道 6.0m) |
| 建ぺい率/容積率 | 60%/200% | 用途地域 | 第一種住居 |
| 都市計画 | - | 種別/構造 | 新築一戸建/木造 |
| 階建 | 3階建 | 築年月(築年数) | 2025年 3月 (新築) |
| 総区画数/販売区画数 | -/- | 向き | 南 |
| 現況 | 完成済み | その他の法令上の制限 | 景観法/川口都市計画事業 |
| 取引態様/引渡時期 | 仲介/即時 | 建築確認番号 | - |
| 物件番号 | 98108324 | 取引条件の有効期限 | 2026年03月17日 |
| 設備条件 |
|
||
| 備考 | うれしい購入価格2,790万円の物件でゆとりある生活を実現。対面式キッチンのため室内に目が行き届き安心感があります。住みやすい空間の条件の1つに前面道路が6m以上あるところを入れてみては。設備も充実している新築戸建ての物件はいかがでしょうか。快適なお住まいを見つけて、新しい生活をスタートさせましょう。これから先のあなたの生活を豊かにする不動産に出会えます。ぜひご検討ください。 | ||
| 取扱会社 |
|
||
※地図上に表示される物件の位置は付近住所に所在することを表すものであり、実際の物件所在地とは異なる場合がございます。




















