川口市仲町 中古戸建
通学区域内の小学校は川口市立飯仲小学校で徒歩8分です。こちらの土地は前面道路6m以上です。20帖以上も広さのあるリビングが魅力的な物件となっています。まずはイオンハウジング 川口前川店(運営会社:イオンモール)のスタッフにご希望条件をお申し付けください。条件にマッチした不動産情報をご用意いたします。
-
ローンシミュレーションこの物件を購入した場合の、月々の支払い価格の一例です。借り入れを保証するものではございません。
- 返済期間
-
- 金利
-
- ボーナス時の増額(1回分)
-
- 借入金額:
-
- 頭金:
-

- 毎月の返済額:
(※元利均等方式 金利5.00%まで ※返済年数5~50年まで入力できます)
(※ボーナスは年2回で計算しています。1000万円まで入力できます)
(※物件購入時、その他諸費用が発生する場合がございます)
情報の見方担当者のコメント イオンハウジング川口前川店

- 広々とした20帖以上のリビングダイニングのおかげで、日々の生活に余裕が生まれます。中古戸建て物件でリーズナブルかつ快適な生活を送りましょう。角地なので日当たりも良く健康的な生活に適しています。こちらの土地は前面道路6m以上です。一戸建ての情報はもちろん、地域環境も併せてご紹介いたします。京浜東北線川口付近の事なら当社にお任せ下さい。お問い合わせは、メール
からでも可能です。
ポイント・特徴
物件概要
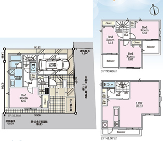
【中古一戸建】 物件番号:99411689 情報更新日:2026年01月22日 次回更新予定日:2026年02月05日所在地 埼玉県川口市仲町97-18 交通 間取り/詳細 4LDK/
洋室 6.9帖 1室/LDK 20.0帖 1室/洋室 6.0帖 1室/洋室 5.5帖 1室/洋室 5.1帖 1室建物面積(坪数) 108.04㎡(32.68坪) 価格 5,480万円 駐車場/月額料金 有/0円 土地の敷金/保証金 -/- 借地料/借地期間 -/- 土地権利 所有権 土地面積(坪数) 77.38㎡(23.40坪) 傾斜地部分面積 - 路地状敷地 - 私道負担面積/セットバック 120.00㎡/無 高圧線下面積 - 地目/地勢 -/- 接道状況 角地(東 私道 7.2m)(南 私道 4.0m) 建ぺい率/容積率 60%/200% 用途地域 第二種住居 都市計画 - 種別/構造 中古一戸建/木造 階建 3階建 築年月(築年数) 2020年 9月 (築5年) 総区画数/販売区画数 -/- 向き - 現況 居住中 その他の法令上の制限 景観地区 取引態様/引渡時期 仲介/2026年2月下旬 建築確認番号 - 物件番号 99411689 取引条件の有効期限 2026年02月05日 設備条件 - 都市ガス
- 公営水道
- 公共下水
- 2面バルコニー
- 3面バルコニー
- 床暖房
備考 コモディイイダ 仲町店まで440mです。設備や周辺環境が整っている中古戸建てはいかがでしょうか。20帖以上もあるリビングでゆったりとした生活を送りませんか。お好きな用途で使用可能な2面バルコニーを備えたお住まいです。048-264-1221からイオンハウジング 川口前川店(運営会社:イオンモール)へお問い合わせいただければ、不動産情報はもちろん、地域情報も併せてご紹介致します。 取扱会社 - イオンハウジング 川口前川店(運営会社:イオンモール株式会社)
- 埼玉県川口市前川1丁目1-11 イオンモール川口前川 1階
- TEL:048-264-1221
- 国土交通大臣 (4) 第7682号
プライバシーマーク
環境ISO 14001 - (一社)全国住宅産業協会会員
(公社)首都圏不動産公正取引協議会加盟
※地図上に表示される物件の位置は付近住所に所在することを表すものであり、実際の物件所在地とは異なる場合がございます。
物件お問い合わせ
- 掲載物件数
-
件
- 公開物件数
-
件
- 本日の更新件数
-
件
- 会員物件数
-
件
価格と住所の近い物件
- 川口市前川4丁目 新築戸建
- 5,480万円 4LDK/101.36㎡
- 埼玉県川口市前川4丁目
- 京浜東北線「蕨」駅
- 川口市芝西1丁目 B号棟
- 5,280万円 4LDK/117.57㎡
- 埼玉県川口市芝西1丁目
- 京浜東北線「蕨」駅 徒歩15分
- 川口市芝西1丁目 A号棟
- 5,180万円 3LDK/118.82㎡
- 埼玉県川口市芝西1丁目
- 京浜東北線「蕨」駅 徒歩15分
- 川口市芝中田2丁目 新築戸建
- 4,980万円 3LDK/104.81㎡
- 埼玉県川口市芝中田2丁目
- 京浜東北線「蕨」駅 徒歩16分
- 川口市南鳩ヶ谷7丁目 新築戸建 B号棟
- 4,790万円 4LDK/96.86㎡
- 埼玉県川口市南鳩ヶ谷7丁目
- 埼玉高速鉄道「南鳩ヶ谷」駅 徒歩14分































