川口市芝西1丁目 B号棟
駅までは徒歩15分でアクセス可能です。角地なので日当たりも良く健康的な生活に適しています。快適なお住まいを見つけて、新しい生活をスタートさせましょう。これから先のあなたの生活を豊かにする不動産に出会えます。ぜひご検討ください。
-
ローンシミュレーションこの物件を購入した場合の、月々の支払い価格の一例です。借り入れを保証するものではございません。
- 返済期間
-
- 金利
-
- ボーナス時の増額(1回分)
-
- 借入金額:
-
- 頭金:
-

- 毎月の返済額:
(※元利均等方式 金利5.00%まで ※返済年数5~50年まで入力できます)
(※ボーナスは年2回で計算しています。1000万円まで入力できます)
(※物件購入時、その他諸費用が発生する場合がございます)
情報の見方担当者のコメント イオンハウジング川口前川店

- 新生活をはじめるのであれば前面道路6m以上の好条件物件をどうぞ。駅徒歩15分の物件です。角地なので日当たりも良く健康的な生活に適しています。内外装共に綺麗な新築戸建ての物件はいかがでしょうか。当社スタッフと一緒に、お客様の新生活に相応しいマイホームを探しましょう。住まい探しを全力でサポート致しますので、まずはお気軽にご連絡ください。
ポイント・特徴
物件概要
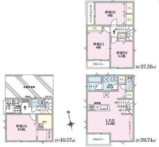
【新築一戸建】 物件番号:99796914 情報更新日:2026年01月22日 次回更新予定日:2026年02月05日所在地 埼玉県川口市芝西1丁目18-31 交通 間取り/詳細 4LDK/
洋室 8.5帖 1室/LDK 16.3帖 1室/洋室 6.0帖 2室/洋室 5.5帖 1室建物面積(坪数) 117.57㎡(35.56坪) 価格 5,280万円 駐車場/月額料金 有(1台)/0円 駐車2台可※車種によります 土地の敷金/保証金 -/- 借地料/借地期間 -/- 土地権利 所有権 土地面積(坪数) 78.03㎡(23.60坪) 傾斜地部分面積 - 路地状敷地 - 私道負担面積/セットバック 98.00㎡/無
私道負担割合 : 1/8高圧線下面積 - 地目/地勢 宅地/- 接道状況 角地(南西 公道 6.0m)(西 私道 4.0m) 建ぺい率/容積率 60%/200% 用途地域 第一種住居 都市計画 市街化区域 種別/構造 新築一戸建/木造 階建 3階建 築年月(築年数) 2026年 3月 (予定) 総区画数/販売区画数 2区画/- 向き - 現況 未完成 その他の法令上の制限 景観法/建築基準法第22条区域 取引態様/引渡時期 仲介/相談 建築確認番号 第SJK-KX255110930号 物件番号 99796914 取引条件の有効期限 2026年02月05日 設備条件 備考 通学区域の小学校は川口市立芝樋ノ爪小学校徒歩4分。駅まで徒歩15分の場所に立地しています。角地なので日当たりも良く健康的な生活に適しています。イオンハウジング 川口前川店(運営会社:イオンモール)は、京浜東北線蕨付近の快適に永く住める一戸建てをご提供致します。ご連絡は、048-264-1221かah-kawaguchim@aeonmall.comからご利用下さい。 取扱会社 - イオンハウジング 川口前川店(運営会社:イオンモール株式会社)
- 埼玉県川口市前川1丁目1-11 イオンモール川口前川 1階
- TEL:048-264-1221
- 国土交通大臣 (4) 第7682号
プライバシーマーク
環境ISO 14001 - (一社)全国住宅産業協会会員
(公社)首都圏不動産公正取引協議会加盟
※地図上に表示される物件の位置は付近住所に所在することを表すものであり、実際の物件所在地とは異なる場合がございます。
物件お問い合わせ
- 掲載物件数
-
件
- 公開物件数
-
件
- 本日の更新件数
-
件
- 会員物件数
-
件
価格と住所の近い物件
- 川口市芝西1丁目 A号棟
- 5,180万円 3LDK/118.82㎡
- 埼玉県川口市芝西1丁目
- 京浜東北線「蕨」駅 徒歩15分
- 川口市前川4丁目 新築戸建
- 5,480万円 4LDK/101.36㎡
- 埼玉県川口市前川4丁目
- 京浜東北線「蕨」駅
- 川口市仲町 中古戸建
- 5,480万円 4LDK/108.04㎡
- 埼玉県川口市仲町
- 京浜東北線「川口」駅 徒歩17分
- 川口市芝中田2丁目 新築戸建
- 4,980万円 3LDK/104.81㎡
- 埼玉県川口市芝中田2丁目
- 京浜東北線「蕨」駅 徒歩16分
- 川口市南鳩ヶ谷7丁目 新築戸建 B号棟
- 4,790万円 4LDK/96.86㎡
- 埼玉県川口市南鳩ヶ谷7丁目
- 埼玉高速鉄道「南鳩ヶ谷」駅 徒歩14分

























